Wohn- & Geschäftshaus · Mittelstraße 48 · 14641 Nauen
Die Mittelstraße Residenz — ein fünfstöckiges Wohn- und Geschäftshaus in Massivbauweise (Stahl, Beton, Mauerwerk), 100 Meter vom Stadtzentrum Nauen entfernt.
Errichtet nach KfW-Effizienzhaus-40-Standard mit Wärmepumpe, Hybridpaneelen und kontrollierter Lüftung je Einheit. Schlüsselfertig, bezugsfertig nach BbgBO.
18 PKW-Stellplätze (4× E-Ladeinfrastruktur), Spielplatz, Fahrradkeller und Kellerabteile je Einheit. 25 km nach Berlin-Spandau.
Frontansicht
Seitenansicht
Rückansicht
Gesamtansicht
Wohnzimmer
Schlafzimmer
Schlafzimmer
Wohnbereich
Wohnküche
Küche
Bad
Wohnzimmer
Die DG-Einheiten verfügen über großzügige Gauben, Dachterrassen und lichtdurchflutete Schlafzimmer unter dem Dach. Einheit 13 (122 m²) mit 4 Zimmern ist besonders als Penthouse-Alternative gefragt.
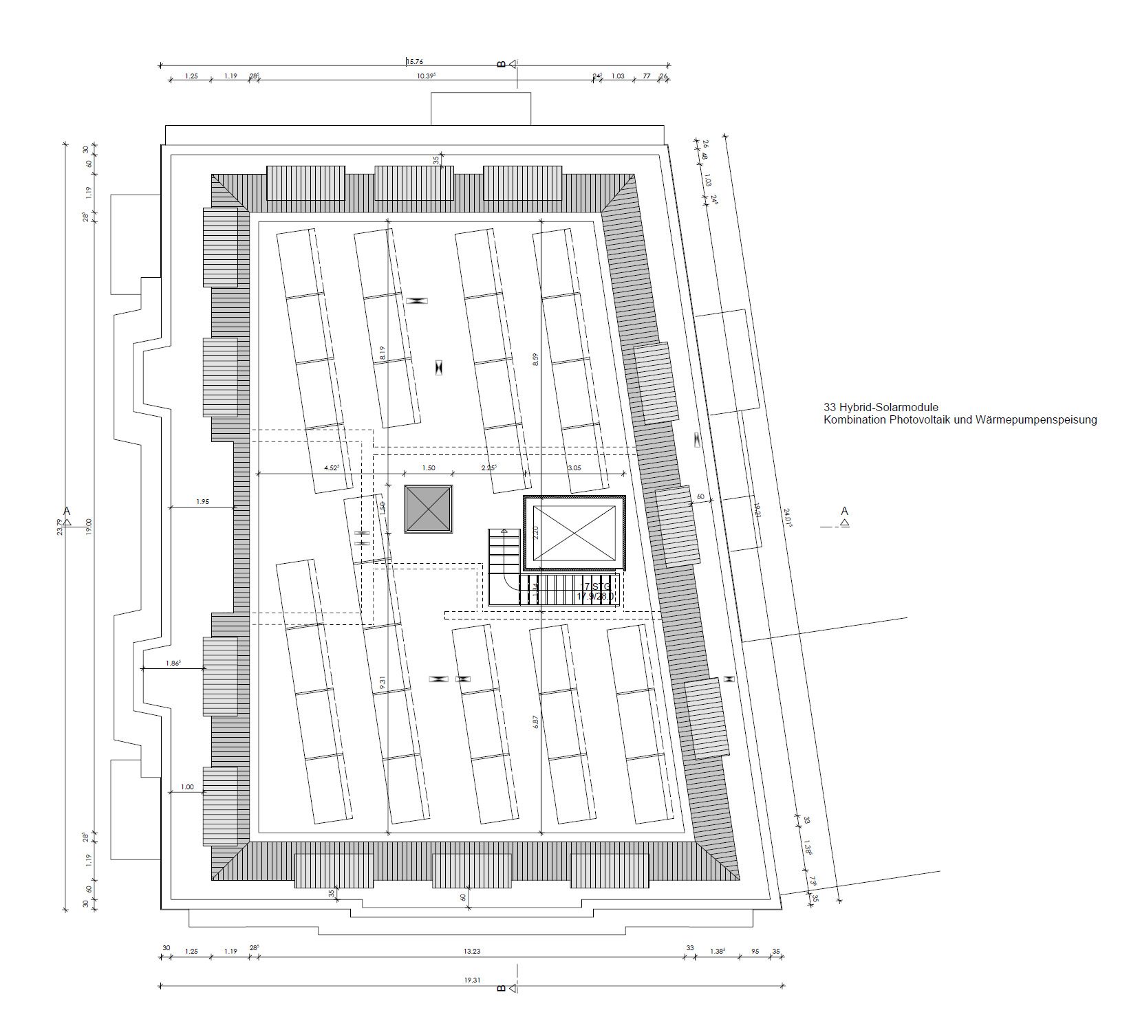
Das Dach trägt 33 Hybrid-Solarmodule (PV + Solarthermie) für alle Einheiten.









Fordern Sie das vollständige PDF-Exposé mit Grundrissen, Preisen und technischen Details an — kostenlos und unverbindlich.
Alle Angaben ohne Gewähr. Visualisierungen sind Computerdarstellungen. Stand März 2026.